溫州弘凌泵閥有限公司
客服1:0577-67987292
客服2:0577-67987270
傳真:0577-67987252
手機:13355776372
地址:浙江省永嘉縣甌北鎮浦西工業區
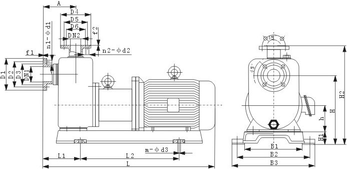
ZCQ型自吸式磁力泵安裝尺寸圖
時間:2018-3-16 16:14:30來源:http://www.meideweixiu.com作者:弘凌泵閥
【ZCQ型自吸式磁力泵】性能曲線圖:
【ZCQ型自吸式磁力泵】安裝示意圖:
【ZCQ型自吸式磁力泵】安裝尺寸圖:
|
型號 |
A |
B1 |
B2 |
B3 |
h |
H |
H1 |
H2 |
L |
L1 |
L2 |
m-Φd |
|
ZCQ20-15-110 |
90 |
150 |
198 |
225 |
60 |
225 |
54 |
315 |
410 |
90 |
210 |
4--Φ18 |
|
ZCQ25-20-115 |
100 |
180 |
250 |
280 |
80 |
240 |
60 |
350 |
550 |
120 |
285 |
4--Φ12 |
|
ZCQ32-25-115 |
100 |
180 |
250 |
280 |
80 |
240 |
60 |
350 |
550 |
120 |
285 |
4--Φ12 |
|
ZCQ32-25-145 |
105 |
180 |
250 |
280 |
80 |
255 |
60 |
360 |
555 |
130 |
285 |
4--Φ12 |
|
ZCQ40-32-132 |
105 |
200 |
270 |
310 |
90 |
265 |
60 |
375 |
610 |
130 |
350 |
4--Φ14 |
|
ZCQ40-32-160 |
115 |
260 |
320 |
360 |
112 |
295 |
60 |
420 |
685 |
170 |
305 |
4--Φ14 |
|
ZCQ50-40-145 |
115 |
260 |
320 |
360 |
112 |
295 |
60 |
420 |
685 |
170 |
305 |
4--Φ14 |
|
ZCQ50-40-160 |
115 |
260 |
320 |
360 |
112 |
295 |
60 |
420 |
685 |
170 |
305 |
4--Φ14 |
|
ZCQ65-50-145 |
145 |
280 |
345 |
390 |
132 |
315 |
60 |
440 |
760 |
210 |
360 |
4--Φ16 |
|
ZCQ65-50-160 |
150 |
280 |
345 |
390 |
132 |
345 |
60 |
475 |
775 |
185 |
360 |
4--Φ16 |
|
ZCQ80-65-125 |
170 |
280 |
345 |
390 |
132 |
446 |
60 |
510 |
80 |
220 |
360 |
4--Φ16 |
|
ZCQ80-65-160 |
180 |
350 |
420 |
470 |
160 |
480 |
100 |
650 |
1000 |
270 |
390 |
4--Φ18 |
【ZCQ型自吸式磁力泵】安裝使用:
1、開箱后檢查泵銘牌,校對自吸泵產品主要參數是否與使用要求相符。
2、自吸泵應水平安裝,泵體不得承受管路重量。
3、泵與管路應保持良好的密封。
4、泵使用前應進行檢查、電機風葉轉動要靈活、無止住及異聲現象,各緊固體要牢固。
5、擰開泵上方的加水螺栓,加入儲液水少于泵體容積的三分這二,旋緊螺栓。
6、接上電源試轉一下,從電機端看,運轉是否與泵轉向標記一致。
7、泵停止工作前,先關閉排出閥門,再關閉電源,后關閉吸入管閥門。
【ZCQ型自吸式磁力泵】使用注意事項:
1、因磁力泵軸承的冷卻和潤滑是靠被輸送的介質,所以絕對禁止空動轉,同時避免在工作中途停電后再啟動時所造成時空載運轉。
2、被輸送介質中,若含有固體顆粒,泵入口要加過濾網:如含有鐵磁質微粒,需加磁性過濾器。
3、泵在使用中環境溫度應小于40℃,電機溫升不得超過75℃。
4、被輸送的介質及其溫度應在泵材允許范圍內(詳見附表)。金屬泵的使用溫度<100℃,被輸送的介質比重≤1.3;介質比重<1.3時,將影響技術性能。
5、對于輸送液為易沉淀結晶的介質,使用后應及時清洗,排凈泵內積液。
6、自吸泵運行500小時后,應拆檢軸承和端面動環的磨損情況,若軸承和軸套的間隙大于0.5 ~1mm,葉輪軸向竄動0.5~2mm時,應更換軸承和軸向動環。
【ZCQ型自吸式磁力泵】故障原因及排除方法:
|
故障形式 |
產生原因 |
排除方法 |
|
自吸式磁力泵不出水 |
1.水泵反轉 2.吸入管路漏氣 3.泵體內未回儲液或儲液不足 4.電壓太高,啟動時內外磁打滑 5.吸程太高或吸入管路太長 |
改變電機接線 杜絕漏氣 增加泵內儲液量 調正電壓 降低吸程或縮短管路 |
|
自吸式磁力泵出水不足 |
1.吸入管徑太小 2.葉輪流道阻塞 3.揚程過高 4.轉速太低 |
調換進水管 清洗葉輪 開大出水閥 恢復額定轉速 |
|
自吸式磁力泵揚程過低 |
1.流量過大 2.轉速太低 |
關小出水閥 恢復額轉速 |
|
自吸式磁力泵噪音太大 |
1.軸嚴重磨損 2.軸套嚴重磨損 3.驅動磁鋼杯與隔離套接觸 |
更換泵軸 更換軸套 拆除泵頭重新組裝 |
|
自吸式磁力泵漏液 |
O型密封圈損壞 |
更換O型密封圈 |




