溫州弘凌泵閥有限公司
客服1:0577-67987292
客服2:0577-67987270
傳真:0577-67987252
手機:13355776372
地址:浙江省永嘉縣甌北鎮浦西工業區
IHF型襯氟塑料離心泵安裝尺寸圖
時間:2018-3-16 15:13:32來源:http://www.meideweixiu.com作者:弘凌泵閥
【IHF型襯氟塑料離心泵】性能曲線圖:
【IHF型襯氟塑料離心泵】安裝尺寸:
|
產品型號 |
電機型號/功率 |
外形及安裝尺寸 |
||||||||||
|
(KW) |
L |
B |
S |
P |
A |
W |
T |
H |
h |
f |
4-φd |
|
|
IHF32-25-125 |
Y802-4/0.75 |
780 |
730 |
470 |
120 |
60 |
320 |
270 |
350 |
220 |
80 |
4-φ19 |
|
Y802-2/1.1 |
780 |
730 |
470 |
120 |
60 |
320 |
270 |
350 |
220 |
80 |
4-φ19 |
|
|
Y90S-2/1.5 |
790 |
730 |
470 |
120 |
60 |
320 |
270 |
350 |
220 |
80 |
4-φ19 |
|
|
IHF32-25-160 |
Y802-4/0.75 |
780 |
730 |
470 |
120 |
60 |
320 |
270 |
350 |
220 |
80 |
4-φ19 |
|
Y90S-2/1.5 |
790 |
740 |
530 |
130 |
60 |
350 |
300 |
370 |
230 |
80 |
4-φ19 |
|
|
Y90L-2/2.2 |
810 |
740 |
530 |
130 |
60 |
350 |
300 |
370 |
230 |
80 |
4-φ19 |
|
|
IHF40-32-125 |
Y802-4/0.75 |
780 |
730 |
470 |
120 |
60 |
320 |
270 |
350 |
220 |
80 |
4-φ19 |
|
Y90S-2/1.5 |
790 |
730 |
470 |
120 |
60 |
320 |
270 |
350 |
220 |
80 |
4-φ19 |
|
|
Y90L-2/2.2 |
820 |
730 |
470 |
120 |
60 |
320 |
270 |
350 |
220 |
80 |
4-φ19 |
|
|
IHF40-32-160 |
Y802-4/0.75 |
780 |
740 |
530 |
130 |
60 |
320 |
270 |
350 |
230 |
80 |
4-φ19 |
|
Y90S-2/1.5 |
800 |
740 |
530 |
130 |
60 |
350 |
300 |
370 |
230 |
80 |
4-φ19 |
|
|
Y90L-2/2.2 |
810 |
740 |
530 |
130 |
60 |
350 |
300 |
370 |
230 |
80 |
4-φ19 |
|
|
IHF50-32-125 |
Y802-4/0.75 |
800 |
740 |
530 |
130 |
60 |
350 |
300 |
370 |
230 |
80 |
4-φ19 |
|
Y90S-2/1.5 |
810 |
750 |
530 |
130 |
60 |
350 |
300 |
360 |
220 |
80 |
4-φ19 |
|
|
Y90L-2/2.2 |
820 |
750 |
530 |
130 |
60 |
350 |
300 |
360 |
220 |
80 |
4-φ19 |
|
|
IHF50-32-160 |
Y802-4/0.75 |
820 |
820 |
560 |
130 |
60 |
350 |
300 |
370 |
235 |
80 |
4-φ19 |
|
Y100L-2/3 |
900 |
800 |
455 |
175 |
60 |
390 |
340 |
480 |
220 |
80 |
4-φ19 |
|
|
Y112M-2/4 |
900 |
820 |
560 |
130 |
60 |
350 |
300 |
370 |
235 |
80 |
4-φ19 |
|
|
IHF50-32-200 |
Y90L-4/1.5 |
850 |
800 |
560 |
130 |
60 |
350 |
300 |
370 |
235 |
80 |
4-φ19 |
|
Y132S1-2/5.5 |
970 |
850 |
560 |
140 |
60 |
390 |
340 |
380 |
260 |
80 |
4-φ19 |
|
|
Y132S2-2/7.5 |
980 |
850 |
560 |
140 |
60 |
390 |
340 |
380 |
260 |
80 |
4-φ19 |
|
|
IHF50-32-250 |
Y100L-4/2.2 |
1030 |
920 |
560 |
200 |
80 |
480 |
430 |
520 |
290 |
100 |
4-φ24 |
|
Y132S2-2/7.5 |
1180 |
1170 |
775 |
200 |
80 |
490 |
440 |
520 |
290 |
100 |
4-φ24 |
|
|
Y160M1-2/11 |
1280 |
1170 |
775 |
200 |
80 |
490 |
440 |
520 |
290 |
100 |
4-φ24 |
|
|
IHF65-50-125 |
Y802-4/0.75 |
800 |
750 |
530 |
130 |
60 |
350 |
300 |
360 |
220 |
80 |
4-φ19 |
|
Y90L-2/2.2 |
850 |
820 |
560 |
130 |
60 |
350 |
300 |
370 |
235 |
80 |
4-φ19 |
|
|
Y100L-2/3 |
870 |
770 |
550 |
110 |
60 |
320 |
270 |
360 |
220 |
80 |
4-φ19 |
|
|
IHF65-50-160 |
Y90S-4/1.1 |
870 |
820 |
560 |
120 |
60 |
390 |
340 |
400 |
235 |
80 |
4-φ19 |
|
Y112M-2/4 |
900 |
820 |
560 |
120 |
60 |
350 |
300 |
370 |
235 |
80 |
4-φ19 |
|
|
Y132S1-2/5.5 |
960 |
840 |
600 |
120 |
60 |
390 |
340 |
400 |
235 |
80 |
4-φ19 |
|
|
IHF65-40-200 |
Y90L-4/1.5 |
990 |
880 |
560 |
140 |
60 |
390 |
340 |
380 |
260 |
100 |
4-φ19 |
|
Y132S2-2/7.5 |
1120 |
850 |
560 |
140 |
60 |
390 |
340 |
380 |
260 |
100 |
4-φ19 |
|
|
Y160M1-2/11 |
1140 |
980 |
660 |
150 |
60 |
460 |
400 |
440 |
260 |
100 |
4-φ19 |
|
|
IHF65-40-250 |
Y100L2-4/3 |
1030 |
920 |
560 |
200 |
80 |
480 |
430 |
520 |
290 |
100 |
4-φ19 |
|
Y160M2-2/15 |
1180 |
1170 |
775 |
200 |
80 |
490 |
430 |
520 |
290 |
100 |
4-φ19 |
|
|
Y160L-2/18.5 |
1330 |
1170 |
775 |
200 |
80 |
490 |
430 |
520 |
290 |
100 |
4-φ24 |
|
|
IHF80-65-125 |
Y90S-4/1.1 |
820 |
800 |
560 |
130 |
60 |
350 |
300 |
370 |
235 |
100 |
4-φ24 |
|
Y112M-2/4 |
900 |
820 |
560 |
130 |
60 |
350 |
300 |
370 |
235 |
100 |
4-φ24 |
|
|
Y132S1-2/5.5 |
980 |
840 |
600 |
120 |
60 |
390 |
340 |
400 |
235 |
100 |
4-φ24 |
|
|
IHF80-65-160 |
Y90L-4/1.5 |
840 |
800 |
560 |
130 |
60 |
390 |
340 |
380 |
260 |
100 |
4-φ24 |
|
Y132S2-2/7.5 |
1040 |
850 |
560 |
140 |
60 |
390 |
340 |
380 |
260 |
100 |
4-φ24 |
|
|
Y160M1-2/11 |
1140 |
980 |
660 |
150 |
60 |
460 |
400 |
440 |
260 |
100 |
4-φ24 |
|
|
IHF80-50-200 |
Y100L2-4/3 |
940 |
850 |
560 |
140 |
60 |
390 |
340 |
380 |
260 |
100 |
4-φ24 |
|
Y160M1-2/11 |
1000 |
960 |
660 |
150 |
60 |
460 |
400 |
460 |
270 |
100 |
4-φ24 |
|
|
Y160M2-2/15 |
1020 |
960 |
660 |
150 |
60 |
460 |
400 |
460 |
270 |
100 |
4-φ24 |
|
|
IHF80-50-250 |
Y112M-4/4 |
1050 |
920 |
560 |
200 |
80 |
480 |
430 |
510 |
285 |
100 |
4-φ24 |
|
Y180M-2/22 |
1330 |
1170 |
775 |
200 |
80 |
490 |
430 |
510 |
285 |
100 |
4-φ24 |
|
|
Y200L1-2/30 |
1430 |
1270 |
850 |
220 |
80 |
550 |
490 |
510 |
285 |
100 |
4-φ24 |
|
|
IHF100-80-125 |
Y90M-L-4/1.5 |
960 |
800 |
560 |
130 |
80 |
390 |
340 |
380 |
260 |
100 |
4-φ24 |
|
Y132S2-2/7.5 |
1040 |
850 |
560 |
140 |
80 |
390 |
340 |
380 |
260 |
100 |
4-φ24 |
|
|
Y160M1-2/11 |
1140 |
980 |
660 |
150 |
80 |
460 |
400 |
440 |
270 |
100 |
4-φ24 |
|
|
IHF100-80-160 |
Y100L-4/2.2 |
940 |
850 |
560 |
140 |
80 |
390 |
340 |
460 |
270 |
100 |
4-φ24 |
|
Y160M1-2/11 |
1120 |
1090 |
760 |
165 |
80 |
460 |
400 |
480 |
280 |
100 |
4-φ24 |
|
|
Y160M2-2/15 |
1140 |
1090 |
760 |
165 |
80 |
460 |
400 |
480 |
280 |
100 |
4-φ24 |
|
|
IHF100-65-200 |
Y112M-4/4 |
1050 |
920 |
560 |
200 |
80 |
480 |
430 |
525 |
300 |
100 |
4-φ28 |
|
Y180M-2/22 |
1280 |
1220 |
880 |
190 |
80 |
570 |
500 |
525 |
300 |
100 |
4-φ28 |
|
|
Y200L1-2/30 |
1380 |
1220 |
880 |
190 |
80 |
570 |
500 |
525 |
300 |
100 |
4-φ28 |
|
|
IHF100-65-250 |
Y132S-4/5.5 |
1140 |
950 |
560 |
160 |
80 |
610 |
510 |
550 |
300 |
100 |
4-φ28 |
|
Y200L2-2/37 |
1380 |
1220 |
880 |
200 |
80 |
630 |
525 |
550 |
300 |
100 |
4-φ28 |
|
|
Y225L-2/45 |
1780 |
1450 |
1280 |
200 |
80 |
630 |
560 |
550 |
300 |
100 |
4-φ28 |
|
(安裝圖僅供參考,如需確切尺寸請來電索取CAD圖)
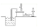
【IHF型襯氟塑料離心泵】安裝示意圖:
|
|
|
|
|
|
【IHF型襯氟塑料離心泵】安裝注意事項:
1、襯氟塑料離心泵的安裝是否合理,對泵的正常運行與使用壽命有極其重要的影響,故安裝和校正必須仔細進行。
2、對照安裝尺寸預埋好底腳螺栓,做好混凝土基礎工作。
3、待基礎水泥凝固后,將泵安裝基礎上,應用水平儀檢查泵和電機軸的水平情況,如不水平,應用墊鐵調正直至水平,調妥后擰緊底腳螺母,
4、檢查泵的轉動部件是否有卡住擦碰現象,應嚴格檢查泵軸與電機的同軸度,可用薄片調整使其同心,后用手轉動聯軸器,轉動輕松均勻無擦碰現象則為正常。
5、泵的吸入和吐出管路應有各自的支架,不允許管路的重量直接由泵來承受,以免把泵壓壞,
6、泵的安裝位置高于液面(在泵的吸程允許范圍內)時,應在吸入管路端部安裝上底閥,并在排出管路上設置灌液螺孔或閥門,供泵起動前灌液之用;泵的安裝位置低于液面時,應在吸入管路上按裝控制閥門和過濾裝置,以防止雜物吸入泵內,過濾面積應大于管路面積的3-4倍。
7、揚程高的泵在出口流量控制閥門的外端管路上還應安裝逆止閥,以防止突然停機時的水錘破壞。
8、必須保證泵的安裝高度符合泵的汽蝕余量,并考慮管路損失及介質溫度。
【IHF型襯氟塑料離心泵】運行與保養:
泵的起動、運轉與停止
1. 泵起動前應將泵內灌滿加足輸送的液體,嚴禁無液起動。
2. 關閉出口閥門,接通電源后馬上檢查泵的轉向必須按泵的轉向箭頭一致,嚴禁逆向運轉,
3. 泵起動后達到正常轉速時,再逐漸打開出口閥門,并調節到所需要的工況投入運行。在吐出管路上的閥門關閉情況下,泵連續工作的時間不能超過3分鐘。
4. 停機時應先將出口的閥門關閉,然后再切斷電源。
維修與保養
1. 定期檢查泵和電機,更換易損零件。
2. 經常注意對軸承箱加注優質鈣基潤滑脂,以保下軸承良好的潤滑狀態。
3. 長期停機不使用時,除將泵內腐蝕性液體放凈外,更應注意各部件及泵內流道的清洗干凈,并切斷電源。
4. 泵嚴禁空載運轉。
5. 介質中如含有固體顆粒時,應在泵入口處須加過濾器。
【IHF型襯氟塑料離心泵】故障原因及排除方法:
|
故障現象 |
原因分析 |
排除方法 |
|
泵不出液體 |
1.電機轉向不對 |
1.調整轉向 |
|
泵不吸液體 |
1.底閥沒有打開或堵塞 |
1.校正或更換底閥 |
|
泵流量不足 |
1.葉輪損壞 |
1.更換葉輪 |
|
泵揚程不足 |
1.葉輪損壞 |
1.更換葉輪 |
|
噪音或振動 |
1.泵軸與電機軸不同心 |
1.校正泵與電機同軸度 |
|
軸承溫升過高 |
1.軸承損壞 |
1.更換 |
|
泵泄漏 |
1.機械密封件損壞 |
1.更換 |







